El proyecto UNIC se inscribe en el nuevo distrito de Clichy-Batignolles, en París, como parte de un conjunto de torres residenciales de alta densidad. Juan Valeros se incorporó al proyecto durante la etapa de Design Development, asumiendo la responsabilidad del
desarrollo técnico de la envolvente y de la definición de los layouts de las unidades residenciales. Durante un año, lideró la coordinación de estas áreas, asegurando la coherencia entre las decisiones de diseño arquitectónico y su resolución técnica.



La Envolvente
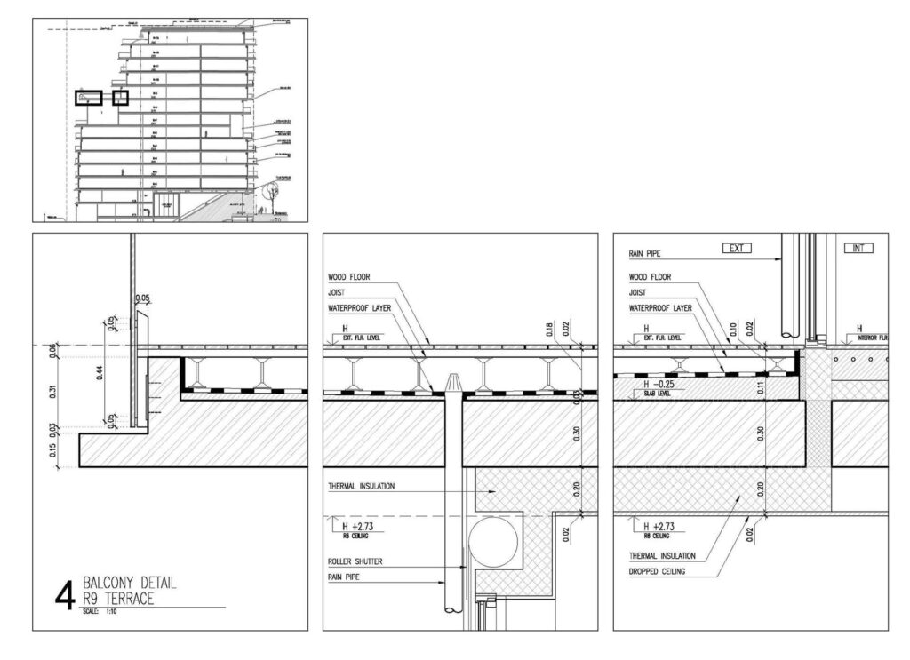
La fachada se compone de un sistema modular de paneles de carpintería de aluminio que alterna paños opacos y vidriados, integrando persianas exteriores para el control solar y la privacidad. Su modulación angosta permite acompañar las curvas del edificio y adaptarse a los cambios de forma que se producen entre niveles, donde losas y balcones sobresalen o se
retraen generando un perfil dinámico. Esta condición volumétrica exigió asimismo el desafío de evitar puentes térmicos en las zonas de voladizos y terrazas. La envolvente propone un lenguaje modular y de lineas verticales que contrastan con la horizontalidad y formas organicas de las losas y balcones.








Las Unidades
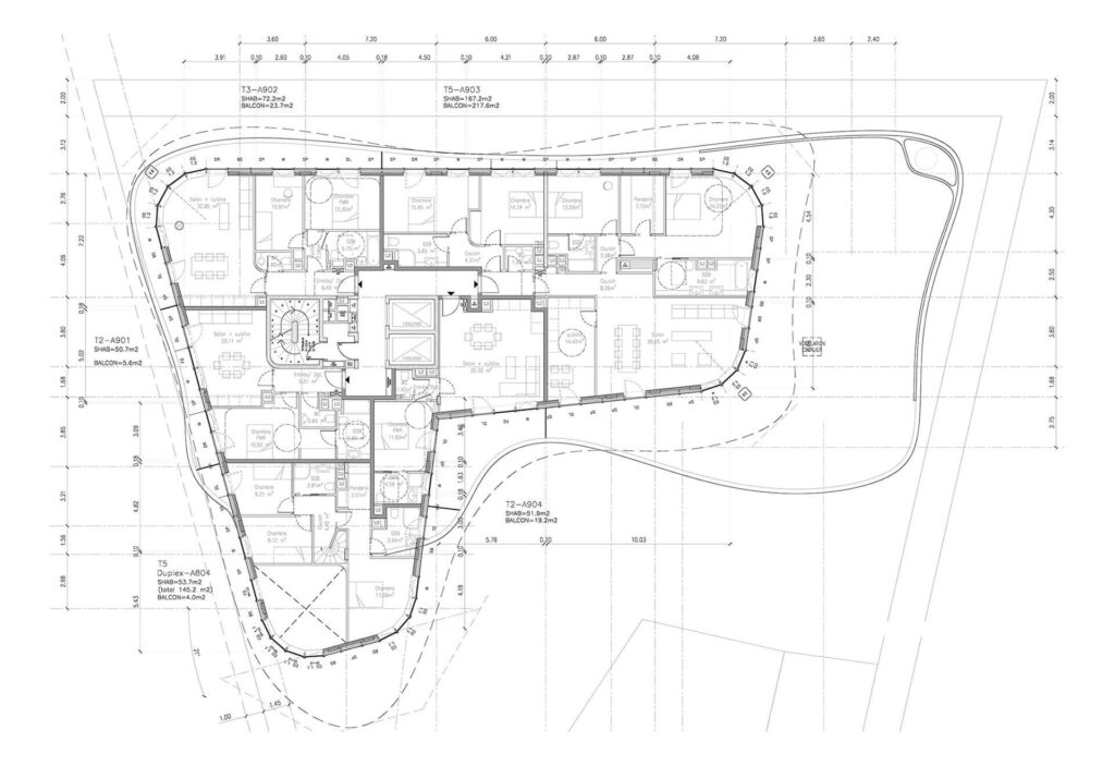
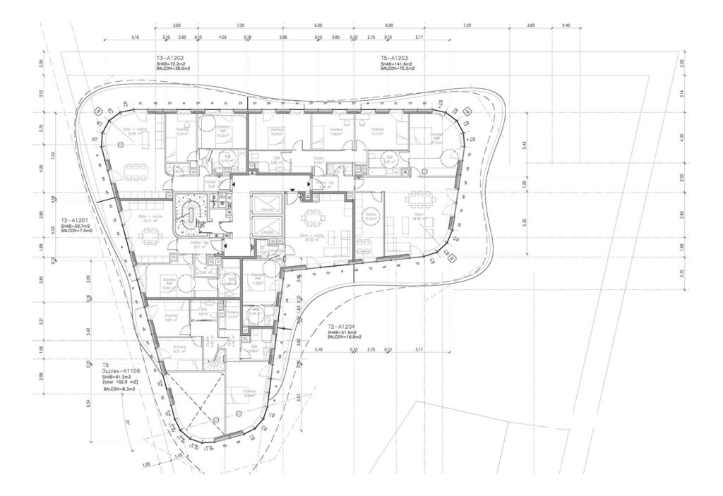
La geometría cambiante del edificio planteó un desafío para la definición de las unidades. Este ejercicio requirió del ajuste y optimización de los layouts, buscando un equilibrio entre la racionalidad estructural y la singularidad espacial de cada unidad. El conjunto incluye una mezcla de tipologías —desde departamentos compactos hasta unidades dúplex de
gran tamaño—, todas concebidas bajo un estándar de alta calidad. Las amplias expansiones y disponibilidad de perímetro refuerzan la idea de habitar en altura con las cualidades de una vivienda unifamiliar, privilegiando la luz natural, las vistas y la continuidad entre interior y exterior.






