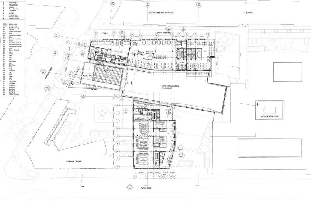
El proyecto St George’s Quarter constituye una pieza clave dentro del plan maestro de renovación del campus de London South Bank University en Southwark. Concebido como el nuevo “Portal de Entrada” de la universidad, el conjunto articula un gran espacio público cubierto —el atrio central— que conecta dos edificios y genera un verdadero corazón cívico para la institución. Integrando la restauración del antiguo templo presbiteriano de 1846, convertido
en espacio para teatro y danza, el proyecto combina patrimonio y contemporaneidad mediante un lenguaje arquitectónico de escala urbana y carácter inclusivo. Sus programas —biblioteca, centro de aprendizaje, espacios de artes escénicas, áreas sociales y de apoyo al estudiante— se organizan alrededor de este espacio central, concebido como un ámbito de encuentro abierto a la comunidad y expresión de una universidad moderna, sostenible y accesible.


El Atrio Central
El rol de Juan Valeros en este proyecto comenzó desde el concurso por invitación, coordinando la expresión volumétrica y de fachadas del conjunto. En las etapas siguientes, su trabajo se centró en el desarrollo del gran atrio central —concebido como una suerte de ágora cubierta— hasta su presentación y aprobación municipal.
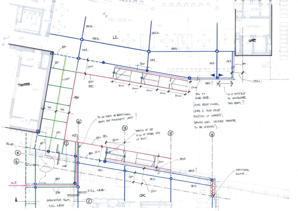
La cubierta del atrio constituye uno de los elementos distintivos del proyecto, configurando una gran “calle interior” que articula los distintos edificios del conjunto. Su estructura se resuelve mediante una cáscara reticulada metálica (grid shell) organica, compuesta por una trama triangular continua que adopta una forma sinusoidal de doble cúpula —una al
norte sobre el acceso principal y otra hacia el sur en relacion al teatro—, aportando rigidez y adaptándose a las alturas y alineaciones de los volúmenes adyacentes.
Esta cáscara está concebida de modo tal que no genera empujes laterales: su propia geometría absorbe las fuerzas horizontales y transmite únicamente las cargas gravitatorias a los edificios adyacentes. Los posibles movimientos de dilatación o las acciones de viento se resuelven mediante apoyos articulados distribuidos en todo el perímetro del techo, que permiten independencia estructural entre los distintos volúmenes.











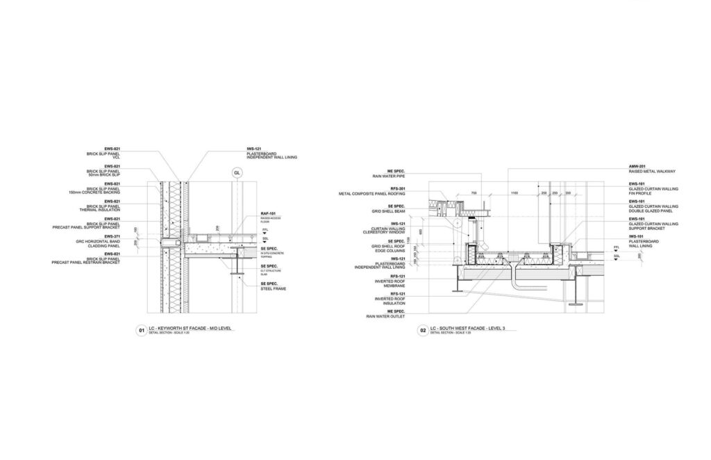
La envolvente se completa con un clerestorio perimetral vidriado para ventilación y control de humo, y con un sistema de canaletas metálicas integradas que resuelven el drenaje. La piel de la cubierta está conformada mayormente por paneles de aluminio prepintado, alternados en forma controlada con sectores de paneles de vidrio transparente que aportan luz natural al interior del atrio. Del lado interior, un sistema de paneles acústicos acompaña con un diseño en forma de gradiente que dialoga con las cúpulas.
El desarrollo de la geometría del techo requirió un trabajo preciso sobre la grilla subyacente, buscando
una alineación armónica con los edificios adyacentes y dimensiones de paneles adecuadas. Se definieron tres grillas sutilmente diferentes que permiten articular la cubierta con cada edificio, variaciones casi imperceptibles a la vista pero fundamentales para el ajuste estructural y geométrico.
El proyecto contó con el asesoramiento estructural de AKT II y con la colaboración de contratistas especializados —Seele, Waagner Biro y GIG—, cuyas propuestas ayudaron a definir la factibilidad constructiva, la secuencia de montaje y las estrategias de fabricación modular.










